DŮM VE VELKÉ LEČICI
vlastní dům | VELKÁ LEČICE | STUDIE - REALIZACE 2018-2024
Na velkém pozemku v údolí říčky, s výhledem do lesů, plníme si sen o životě v přírodě. Dům, který jsme tu postavili, k tomu poskytuje potřebné zázemí. Jako autoři, investoři a také stavitelé, hledali jsme nejzazší hranici, kde se naše přání ještě dotýkala s možným.
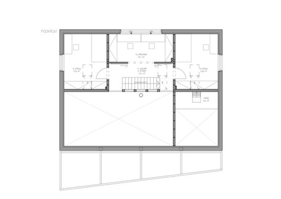
Dům má konstrukci z CLT panelů, která elegantně řeší statiku i estetiku. V interiéru kombinuje krásu s odolností a zabírá minimum plochy. V kompaktní hmotě se ukrývá dispozice 6+kk s převýšeným obytným prostorem, postaveným kolem centrálních kamen. Kombinací velkorysosti jedněch místností s kompaktností druhých, vešla se do domu i praktická spíž a velká technická místnost.
Dům je napojen na vlastní studnu a kořenovou čistírnu. Tvoří funkční celek s o dva roky dříve postavenou dílnou. Vzájemná poloha staveb formuje prostor kolem nich. Vzniká tak přívětivý vstupní dvorek i soukromá část zahrady odstíněná od cesty.















